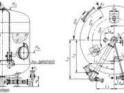
Бак деаэраторный БДА-50 предназначен для работы в составе атмосферных деаэраторов ДА для установки колонок КДА (ДА)-100-200. Баки деаэраторные...
2
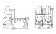
Фильтры натрий-катионитные параллельно-точные первой ступени ФИПа l-2, 6-0, 6 Na, предназначены для обработки воды с целью удаления из нее...
Полумеханические топки ПТЛ-РПК-2-2,66/3,66 (ЗП-РПК-2-2,66/3,66) с пневмомеханическими забрасывателями топлива и решёткой из поворотных колосников,...
Оборудуй.ком — объявления
по продаже оборудования
