2
Фильтры ионитные параллельноточные II ступени ФИПа ll-1, 0-0, 6 Na предназначены для глубокого умягчения и полного химического обессоливания...
Изготовление батарейных циклонов ЦН-15-300х2УП, ЦН-15-400х2УП, ЦН-15-500х2УП, ЦН-15-600х2УП, ЦН-15-700х2УП, ЦН-15-800х2УП, ЦН-15-900х2УП,...
Водяной чугунный блочный экономайзер ЭБ-2-142 представляет собой трубчатый теплообменник, в котором питательная вода перед поступлением в котел...
Экономайзер чугунный блочный ЭБ представляет собой трубчатый теплообменник, в котором питательная вода перед поступлением в котел подогревается до...
Солерастворитель С-1,0-1,0 предназначен для приготовления регенерационных растворов соли для катионитных фильтров, а также для осветления...
2
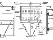
Батарейный циклон БЦ 259-(3х2) применяется для улавливания золы образующейся при сжигании твердых золосодержащих топлив в паровых и водогрейных...
2
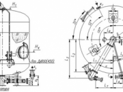
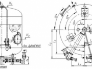
Фильтры осветлительные вертикальные ФОВ-1.4-0.6 предназначены для удаления из питательной воды взвешенных примесей различной степени дисперсности...
2
Батарейные циклоны БЦ-259-(4х3) представляют собой пылеулавливающие аппараты, бц 259 копия составленные из 12 параллельно установленных циклонных...
2
Циклон ЦБ-16 представляет собой сварной корпус, в котором установлены ряды параллельно расположенных циклонных элементов с полуулиточным вводом...
Оборудуй.ком — объявления
по продаже оборудования
