2
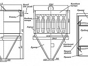
Батарейный циклон БЦ 259-(6х8) применяется для улавливания золы образующейся при сжигании твердых золосодержащих топлив в паровых и водогрейных...
Изготовление батарейных циклонов ЦН-15-300х2УП, ЦН-15-400х2УП, ЦН-15-500х2УП, ЦН-15-600х2УП, ЦН-15-700х2УП, ЦН-15-800х2УП, ЦН-15-900х2УП,...
Деаэраторы атмосферного ДА-100/50 давления предназначены для удаления коррозионно-агрессивных газов (кислорода и свободной углекислоты) из...
2
Батарейные циклоны БЦ-2-6х(4+3) состоящий из двух параллельно работающих секций, составленных из параллельно установленных циклонных элементов,...
Оборудуй.ком — объявления
по продаже оборудования
