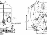
Фильтры ионитные параллельно-точные второй ступени ФИПа 2-3,4-0,6 Na, используются на водоподготовительных установках электростанций, промышленных...
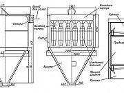
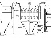
Батарейный циклон БЦ 259-(6х4) применяется для улавливания золы образующейся при сжигании твердых золосодержащих топлив в паровых и водогрейных...
2
Циклон БЦ-259-(6x6) - предназначен для очистки дымовых газов в паровых и водогрейных котельных. Батарейный циклон БЦ 259-(6х6) предназначен для...
Оборудуй.ком — объявления
по продаже оборудования
