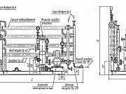
Блок мазутоподготовки БМП 0,75-2,5 предназначен для фильтрации, подогрева мазута марок «40» и «100» с температурой 60–70°С до температуры 100–110°С...
Деаэрационные колонки атмосферного давления КДА-15 предназначены для удаления коррозионно-агрессивных газов (кислорода и свободной углекислоты) из...
3
Топка ТЛЗМ-1,87/4,0 - механическая топка с забрасывателями и цепной решеткой обратного хода, предназначена для слоевого сжигания каменных и бурых...
Блочные водоподготовительные установки ВПУ-12 применяются для умягчения питательной воды для котельных агрегатов и других объектов, где требуется...
Котлы водогрейные КВм работают с принудительной циркуляцией воды в открытых и закрытых системах теплоснабжения. Сжигаемое топливо: каменный и бурый...
Модульная котельная установка МКУ-В-1,2 предназначена для применения в системах теплоснабжения в качестве эффективного автономного источника...
2
Фильтр натрий-катионитный параллельно-точный первой ступени ФИПаI-1,4-0,6-Na предназначен для обработки исходной воды с относительно малой...
Оборудуй.ком — объявления
по продаже оборудования
