Золоуловитель ЗУ-1-1 - это циклон, предназначенный для сухой инерционной очистки газов от летучей золы с размером частиц более 50 мкм с...
Водогрейный твердотопливный котел КВм 1,2 мощностью 1,2 МВт (1200 КВт) предназначен для отопления и горячего водоснабжения. Устанавливается в...
Изготовление батарейных циклонов ЦН-15-300х2УП, ЦН-15-400х2УП, ЦН-15-500х2УП, ЦН-15-600х2УП, ЦН-15-700х2УП, ЦН-15-800х2УП, ЦН-15-900х2УП,...
Модульная котельная установка МКУ-В-2,3 предназначена для применения в системах теплоснабжения в качестве эффективного автономного источника...
Бак деаэраторный БДА-8 является горизонтальной, цилиндрической ёмкостью с эллиптическими днищами, патрубками входа и выхода рабочей среды,...
2
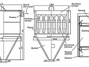
Батарейные циклоны БЦ-259-(4х4) представляют собой пылеулавливающие аппараты, бц 259 копия составленные из 16 параллельно установленных циклонных...
Оборудуй.ком — объявления
по продаже оборудования
